0
fr
Eric COSTANZO Négociateur
Télécharger la fiche
Sous-compromis Nouveauté

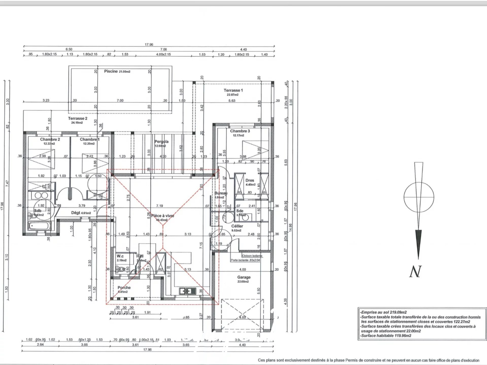
Maison 4 pièce(s) 3 chambre(s) 120 m²

Samatan (32130)
249 000 € Référence 33445

A propos de ce bien

SEULEMENT CHEZ L'EQUIPE IMMO !

À 5 min de Samatan et 15 min de l'Isle-Jourdain, venez découvrir cette maison neuve hors d'eau hors d'air dans un petit quartier résidentiel avec une vue imprenable sur les Pyrénées.

Bâtie sur une parcelle de 1000m2, cette maison de plain pied de 120m2 propose un aménagement avec une grande pièce de vie très lumineuse et son cellier attenant, 3 grandes chambres avec sortie, dont une suite parentale avec son espace bureau.

La terrasse orientée plein sud une vue panoramique sur la campagne gersoise et les Pyrénées... une invitation à se ressourcer à tout moment de la journée !

Dotée d'un grand garage de plain pied, elle dispose également d'un sous sol permettant de stocker ou encore de créer une salle de sport par exemple.

Le plus : vous pouvez choisir de terminer la maison à votre guise ou opter pour un projet clé en main ! À voir sans tarder !

Caractéristiques de ce bien

  • Surface 120 m²
  • terrain 1 005 m²
  • 3 chambre(s)
  • 1 salle(s) d'eau
  • construit en 2024
  • Chauffage autre : autre (autre)
  • 1 garage(s)
  • vue Panoramique,Montagnes
  • terrasse

Diagnostics énergétiques

Consommation énergétique
A B C D E F G
Emission de gaz à effet de serre
A B C D E F G
DPE non concerné

Informations financières

Prix de vente 249 000 € Les honoraires d'agence seront intégralement à la charge du vendeur

Autour du bien

  • Commerces et santé
  • Loisirs
  • Ecoles
  • Transports
  • Pratique

Calcul des mensualités

* Champs obligatoires